【資質】JGD型水泵橡膠剪切隔振器壓縮性能試驗報告
上海淞江減震器集團有限公司官方網站為您介紹:JGD型水泵橡膠剪切隔振器壓縮性能試驗報告信息,淞江集團是一家從事各種工業減震器的生產廠家,我廠擁有先進的檢測設備,每個減震器產品我廠質檢部門都會對產品進行檢測并出一份書面的檢測報告,以下是淞江集團JGD型水泵橡膠剪切隔振器壓縮性能試驗報告掃描件,該掃描件為我廠技術性檢測報告,只為購買淞江集團產品的客戶提供幫助,嚴厲打擊同行或貼牌商盜取該資料,違者必究,謝謝合作。

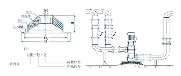
以下是JGD型水泵橡膠剪切隔振器介紹:








JGD橡膠剪切隔振器產品主要特點與用途:
該系列產品由金屬和橡膠復合制成,表面全部包復橡膠,可防止金屬銹蝕。
結構簡單、安裝方便,可直接安裝在機座下,同時也可用地基螺栓固定安裝,使用安全可靠,載荷范圍為30kg~1800kg。適用于-15~+70℃溫度范圍。
JGD型橡膠隔振器由金屬件及橡膠體粘貼而成,其彈性體采用軸對稱環狀剪切型結構,本系列產品分4種尺寸結構,10種承載規格,軸向承受額定載荷從10~1280kg,阻尼比大于0.06,對共振的抑制力強。該減震器外形美觀,結構緊湊,與同類型相同規格隔振器相比結構尺寸小,重量輕,安裝更換方便,工作安全可靠,能在-5℃~+50℃范圍內保持正常工作。JG減震器對800r/min以上回轉及往復機械振動的隔離具有很好的隔振效果,適用水泵、風機、空壓機、柴油機、冷凍機等機械設備的振動隔離及儀器儀表防振、防沖擊。本產品也適用于航空、船舶及機車中各類設備的振動隔離和防護。
以上信息來自于:上海淞江減震器集團有限公司官方網站,如需了解更多橡膠減震器信息可以撥打我公司總機:021-33666667。













